Дизайн однокомнатной квартиры 30 кв. м. 5 фото-проектов
Владельцы однокомнатных квартир часто сетуют на крохотные размеры помещения, считая, что миниатюрное жилище не может быть удобным и красивым. Однако многочисленные проекты специалистов показывают, что дизайн однокомнатной квартиры 30 кв. м. может быть очаровательным, просторным и комфортабельным. Одни скажут, что это невозможно, продолжая ютиться в каморке, а другие воспользуются дизайнерскими хитростями и, словно по взмаху волшебной палочки, окажутся хозяевами королевских квадратных метров. Не верите, что однокомнатная квартира может быть роскошной? Представленные проекты докажут, что чудеса существуют!
Идеи для оформления однокомнатной квартиры в 30 кв.м.
Модное веяние, пришедшее из Запада, позволило хозяевам «кукольных» однокомнатных квартир наслаждаться просторным жилищем с множеством функциональных зон. Название этому чуду – квартиры-студии. Снести стены – дело нехитрое. Залог успеха – серьезное отношение к приемам зонирования, отделочным материалам, цветовой гамме, мебели, аксессуарам, освещению.
Представленные проекты вдохновят и позволят превратить маленькую квартиру в хоромы.
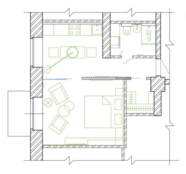
Фото-проект №1. Снежно-серое наваждение на 30 кв. м.
Крошечная однокомнатная квартира, размер которой всего лишь 30 кв. м., после умелых манипуляций дизайнера, балует эстетичностью, эргономичностью и уютом.
Цветовая гамма скромна, проста, но в то же время эффектна и легка. Палитра состоит из дымчатого, снежного и графитного тонов. Белый цвет наполняет квартиру свежестью, прибавляет объемов, а серые тона привносят мягкости, нежности и в то же время строгости.
Благодаря перепланировке помещение состоит из гостиной-спальни, кабинета, кухни, столовой и ванной комнаты. Квартиру-студию разделили, используя фальшивую стену и несколько видов напольного покрытия.
Кухня с белым гарнитуром превосходно сочетается с серым кафелем в тон стене, отделяющей гостиную. Место отдыха – приветливо и уютно, так как невесомые шторы белого цвета не препятствуют солнечным лучам проникать в помещение, наполняя его светом. А серый диван, царственно восседающий на пушистом грифельном ковре, манит прилечь и перенестись в мир грез. Декоративные подушки в тон обивке дивана и ковру привносят домашности, мягкости.
Трудно представить квартиру без наличия рабочей зоны, правда, в миниатюрном помещении крайне трудно выделить место даже для лишнего стула. В данном варианте дизайнеру удалось весьма мелодично разместить большой стол, удобный стул и полочки. Завершающих ноток прибавили живые растения, которые прекрасно разбавляют белоснежную монотонность, и оригинальные картины.
Ванная комната благодаря гармоничному расположению санитарной, бытовой техники, бело-серой палитре, стеклянным дверцам кабинки и широкому зеркалу, получилась привлекательной, удобной.
Квартира-студия воздушна, элегантна, уютна и невероятно просторна! Студия M2project, Mосква.









Украшение для интерьера. Фарфоровые фигурки котят
[affegg id=17]
Популярная мебель для кухни
[affegg id=20]
Фото-проект №2. Изысканный и теплый дизайн
Дизайн, когда-то крошечной квартиры, захватывает дух. После работы специалистов, интерьер поражает роскошью, величием, простором и уютом.
Палитра представлена белыми, бежевыми и серыми оттенками с вкраплениями золотистого, шоколадного, красного и черного цвета. Каждый тон придает шика, лоска и визуально увеличивает пространство.
Планировка весьма интересная и интригующая. Квартира разделена на функциональные зоны: огромная гостиная-спальня, столовая, кухня и ванная.
Балкон дизайнер переоборудовал в грациозную столовую, которую можно скрыть от посторонних глаз с помощью матовой стеклянной двери. Роскошные шторы, элегантный столик в объятиях очаровательных мягких кресел создают сердечную, теплую атмосферу с романтическими нотками.
Гостиная впечатляет размерами и восхитительным дизайном. Огромный диван, элегантное кресло, экстравагантные столики и оригинальный декор, сочетаясь, создают дивную композицию, балующую практичностью, благородством и шармом.
Кухня отделена от места отдыха перегородкой с прикрепленным мини-столиком и приставленными к ней стульями. Готовя блюда для гостей или домочадцев, можно присесть с чашечкой ароматного кофе и помечтать, а также уединится с подругой за душевным разговором.
Дизайн однокомнатной квартиры-студии завораживает и очаровывает с первого взгляда! Студия GM Interior, Москва.







Настенные бра в однокомнатную квартиру
[affegg id=12]
Классическая модульная мебель для гостиной
[affegg id=21]
Фото-проект №3. Перевоплощение неудобной однокомнатной квартиры в многофункциональное помещение
Дизайн квартиры-студии воздушен, легок и невесом.
Цветовая палитра состоит из черных, белых, серых и бежевых оттенков. Светлые тона увеличивают пространство, наполняют светом, уютом, теплом, а темные привносят эффектности.
Переоборудовав помещение в студию, удалось жилище разделить на зоны:
- кухня;
- гостиная;
- спальня;
- ванная.
Кухня от гостиной отделена стойкой и низко свисающими приборами освещения. Место для сна представлено огромной кроватью, а область отдыха – темным мягким диваном, журнальным столиком и необычным креслом, что делает комнату не только светлой и невесомой, но и уютной. А декор умело придает квартире домашности.
В помещении много древесного материала, что привносит в атмосферу тепла и аромата величественных лесов.
Ванная комната, несмотря на миниатюрные размеры, кажется большой и воздушной. Светлая гамма прибавляет объемов, мозаичная антрацитовая стена отвлекает от недостатков комнаты. А компактная мебель и сантехника не загромождают пространство.
Все предметы интерьера раскрывают и подчеркивают красоту дизайна, нежность и мягкость друг друга, благодаря чему квартира-студия прекрасна, светла и воздушна. ART-UGOL Design, г. Новосибирск.








Шторы в однокомнатную квартиру
[affegg id=14]
Мебель для спальни новинки
[affegg id=22]
Фото-проект №4. Инновационный переворот в дизайне
Квартира после манипуляций дизайнера выглядит ультрасовременной, уютной и гармоничной.
Цветовая палитра состоит из белых, бежевых, серых и черных тонов. Каждый оттенок выполняет свою задачу: белоснежные тона расширяют пространство, наполняя свежестью, светом и воздухом, черные разбавляют монохромность, привнося строгости, дымчатые придают нежности, мягкости, а бежевые создают уют.
Благодаря перепланировке удалось жилище разделить на зоны:
- гостиная;
- столовая;
- спальня;
- гардеробная;
- кухня;
- ванная.
Практически квартира разделена на 2 части с помощью перегородки, но визуально помещение состоит из множества функциональных областей.
На одной половине жилища расположились гостиная и спальня. Зона отдыха выглядит приветливо и радушно. Здесь красуются 2 кресла, 2 столика и торшер на оригинальных ножках с объемным абажуром. Завершают картину телевизор и экстравагантная люстра.
Спальня располагает к полноценному отдыху. Огромная кровать, живые растения и длинные полочки смотрятся гармонично, стильно и уютно.
Вторая половина квартиры представлена гардеробной, кухней-столовой. Особого внимания заслуживает потрясающий торшер на изогнутой ножке с изумительным абажуром, нависающим над столом.
Ванная комната приводит в восторг – практичная, просторная, светлая с умело замаскированной бытовой техникой. Стеклянные поверхности создают иллюзию невесомости, прибавляя объемов. А дерево привносит домашности.
Дизайн этой квартиры невероятно эффектен! Макс Касымов, г.Москва.










Фото-проект №5. Нежный, ласковый дизайн однокомнатной квартиры
Проект идеален для нежных, мечтательных натур. Он завораживает лаской, приветливостью и радушием.
Цветовая гамма представлена белоснежными тонами с вкраплениями бежевых, голубых, светло-бирюзовых и серых оттенков. Светлая палитра делает квартиру просторной, голубые оттенки привносят свежести, бежевые наполняют теплом и уютом, а серые окутывают мягкостью.
Перепланировка позволила поделить однокомнатную квартиру на несколько зон: кухня, спальня, рабочая область и ванная.
Спальня отделена от кухни полупрозрачной перегородкой, стекло которой разрисовано нежным узором. Рабочая зона представлена огромным столом и большим шкафом с зеркальными дверцами, в которых отражается окно, что делает комнату просторной, светлой.
В кухонной зоне красуется не только стильный гарнитур, но и удобный диван в дуэте с милым столиком. Здесь можно принимать гостей, уединится, помечать, отдохнуть.
Ненавязчивые аксессуары завершают картину, нанося яркие штрихи.
Квартира невероятно уютна и нежна.
Глядя на проекты, можно сделать вывод, что дизайн однокомнатной квартиры 30 кв. м. может быть мелодичен, уютен, эффектен и комфортен! Дизайнер Елена Тупикова.





